Projeto da Câmara de vereadores do município de Barra Velha.
Projeto com intuito de fazer com que o poder público se torne transparente para o povo através da arquitetura transparente e visível e fisicamente acessível.
Data: Outubro, 2010.
Autoria: Trabalho em equipe (Arq. Denise Rosevita Freitas, Arq. Luciana Schwoelk Fulte Gugelmin, Arq. Marianne Medeiros Gomes, Arq.Pablo José Vailatti e Eng. Cristiane Regina Negri)
Project of Barra Velha County Council.
Barra Velha is a city of the state of Santa Catarina, Brasil.
The project aims to cause the sensation that the public government is transparent to the citizens through the transparent architecture and the visible and physical accessibility.
Date: October, 2010.
Team work (Architect Denise Rosevita Freitas, Architect Luciana Schwoelk Fulte Gugelmin, Architect Marianne Medeiros Gomes, Architect Pablo José Vailatti and Engineer Cristiane Regina Negri)
Perspectiva 01 (3d 01)
Perspectiva 02 (3d 02)
Perspectiva 03 (3d 03)
Perspectiva 04 (3d 04)
Perspectiva 05 (3d 05)
Perspectiva 06 (3d 06)
Perspectiva 07 (3d 07)
Planta Baixa Pav. Térreo (Ground plan)
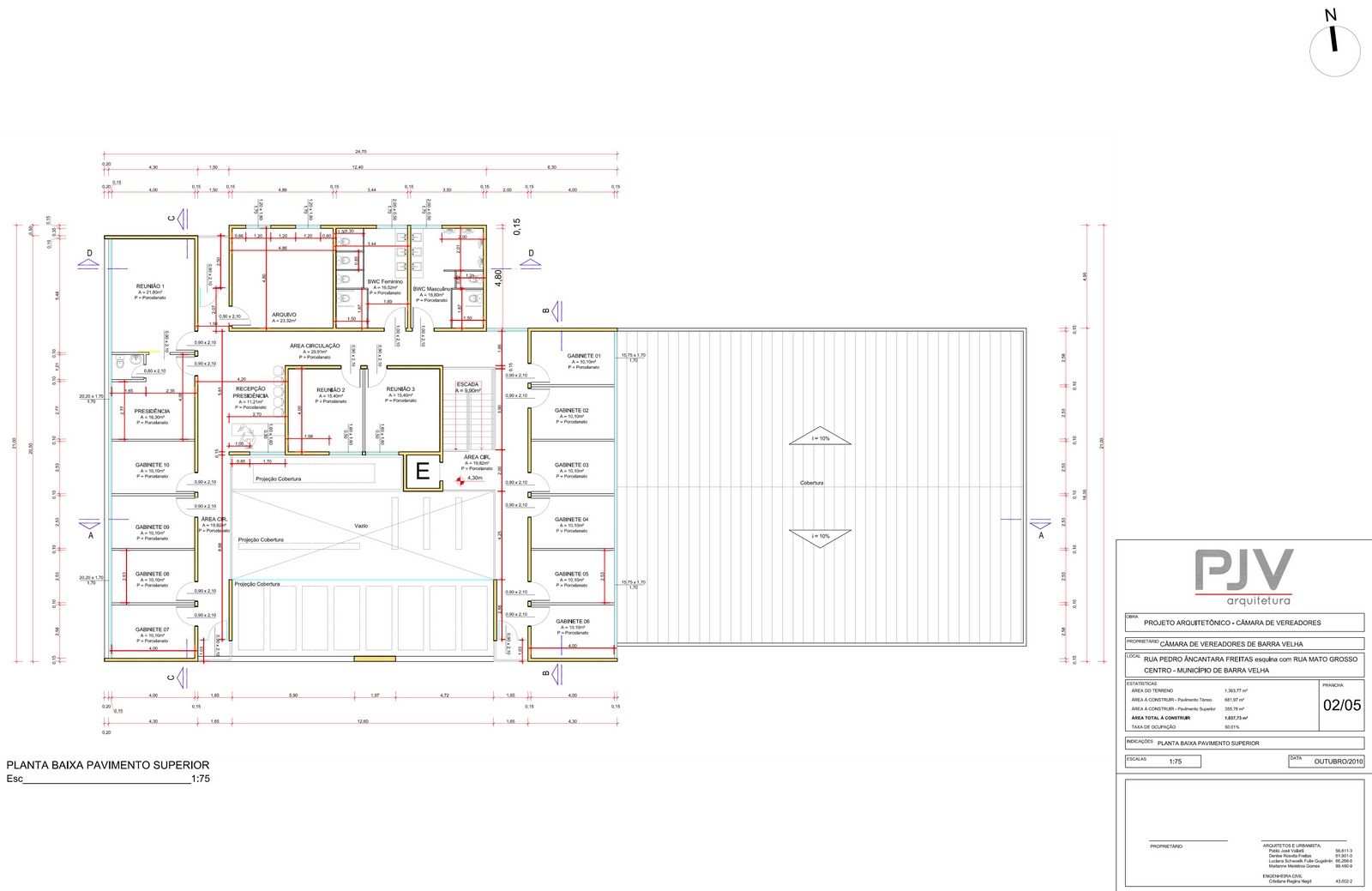
Planta Baixa Pav. Superior (First plan)
Cortes (Sections)










Nenhum comentário:
Postar um comentário